東京都墨田区・京島エリアに、福祉を起点に観光・まち・文化をつなぐ新たな複合福祉施設、「TACHIBANA TERMINAL(たちばな・たーみなる)」がオープンします!
商店街のにぎわいの中心「向島橘銀座商店街(キラキラ橘商店街)」に、昭和建築をリノベーションして誕生したこの施設は、福祉・観光・文化を融合する「交流・創造・発信の場」を目指しています。
福祉だけじゃない!街と旅人をつなぐ多彩な空間づくり
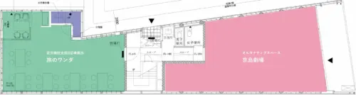
「TACHIBANA TERMINAL」は2階建て構成。
1階は、障がいのある方の職業訓練を支援する就労継続支援B型事業所「旅のワンダ」と、多目的に使えるオルタナティブスペース「京島劇場」を設置。
2階には、障がい者と世界の旅行者が交わるホステル「HOSTEL 1つの風景」、自由にものづくりを楽しめる工房「京島共同凸工所」、さらに地域住民と旅人が気軽に集える「あづまラウンジ」まで完備!
まさに福祉施設の枠を超えた、”まちまるごと福祉”の体現場所です。


地域とつながる「まちまるごと福祉」の拠点
この施設を手がけたのは、福祉の新たな形を追求する「日常福祉合同会社」。
福祉は受けたり与えたりするものではなく、「気づけばそこにあるもの」という考えのもと、京島の街全体を福祉現場とする活動を進めています。
中心メンバーには、地域課題解決に取り組んできた堀直人さん、アーティスト支援と街づくりに携わる後藤大輝さん、不動産・まちづくりコンサルタントの初谷賢一さん、医療ケアワーカーの佐久間洋子さんが名を連ね、多様な視点から地域と福祉をつないでいきます。
これからの予定も楽しみ!イベントも続々
5月からは、クラウドファンディングや社債発行説明会、シンポジウム「まちまるごと福祉と地域づくり」が開催予定!
6月には「幸せとゆたかさについてのダイアログ」合宿も企画されています。
そしていよいよ、7月1日にグランドオープン!
オープニングイベントでは、「福祉のはじまりと観光の終焉」というテーマの元、さまざまな発信が行われる予定です。
アクセス・基本情報
- 施設名称:TACHIBANA TERMINAL ─ 橘銀座多機能複合拠点
- 住所:東京都墨田区京島3丁目23番11号
- 営業時間:9:00~21:00
- ウェブサイト:https://nichijyofukushi.com
- noteページ:https://note.com/ecowelfare
- Facebook:https://www.facebook.com/nichijyofukushi
まとめ:福祉を未来につなげる新たなチャレンジに注目!
「TACHIBANA TERMINAL」は、単なる福祉施設ではなく、地域の未来を紡ぐハブとなる場所。
観光で訪れた人も、地域に暮らす人も、そして福祉を必要とする人も、みんなが交わり、学び合い、支え合える――そんな温かい場になること間違いなしです。
京島エリアに訪れた際は、ぜひ一度立ち寄ってみてくださいね!


